
| Transação | Aluguel |
| Bairro | Campos Elíseos |
| Endereço | Alameda: EDUARDO PRADO |
| Dormitórios | 1 |
| Suites | 0 |
| Vaga | 1 |
| Área útil | 29 m² |
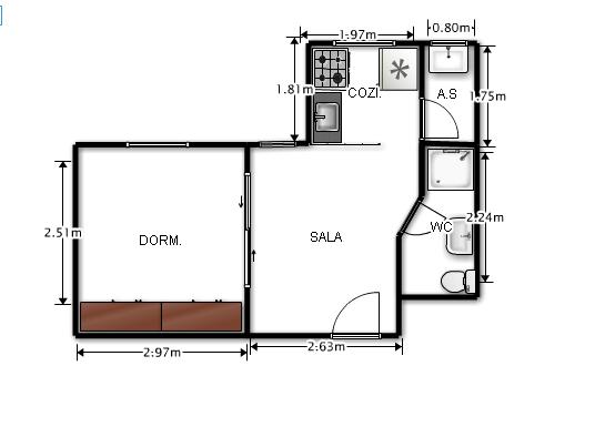
Apartamento com 28 m2 de área útil muito bem distribuídos em um dormitório com armário embutido, sala, cozinha americana com armários planejados, banheiro com box e chuveiro e área de serviço com tanque de lavar roupa. Piso revestido com carpete de madeira e pintura nova. O apartamento conta com 01 vaga livre de garagem.
Fica localizado bem próximo ao corredor de ônibus que dá acesso as estações de metrô República, Consolação, Mackenzie. A região possui mercado, bancos e restaurantes.
Condomínio muito bem cuidado, com dois salões de festas, playground e portaria 24 horas. Possui bicicletário, vaga livre. Outra vantagem é o condomínio com valor justo, incluso água e gás. Prédio possui coleta seletiva de lixo.
| Aluguel | R$ 1.200,00 |
| Condomínio | R$ 503,00 |
| IPTU Mensal | R$ 95,00 |
| Total | R$ 1.798,00 |
Aluguel | |
Condomínio | |
IPTU Mensal | |
Total |
Não encontrou o que procura? A Plaka pode te ajudar a encontrar o imóvel que deseja.
Contato