
| Transação | Aluguel |
| Bairro | Campos Elíseos |
| Endereço | Alameda: Eduardo Prado |
| Dormitórios | 1 |
| Suites | 0 |
| Vaga | 1 |
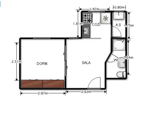
| Área útil | 28 m² |
| Área Total | 62 m² |
Apartamento do início da década de 90, possui 28m2 de área útil com distribuição de ambientes inteligente (ventilação em todos espaços e ótimo aproveitamento dos mesmos), dormitório com guarda roupa, pintura em bom estado e piso revestido com laminado. Sala também com piso laminado e pintura em bom estado, sofá dois lugares e painel com TV. Cozinha tipo americana, mesa com balcão em granito, fogão, geladeira, microondas e armários de parede. Banheiro com box em vidro e armário de parede, por fim área de serviço com tanque de lavar roupa. O apartamento conta com 01 vaga livre de garagem em local indeterminado, seja em um dos sub solos ou no pavimento térreo.
A poucos metros do Teatro Porto Seguro, Sesc Bom Retiro e corredor de ônibus da Av.Rio Branco, região com supermercados, sacolão, feira livre, padarias e muito mais.
Condomínio concebido pela CYRELA, com 2 salões de festas e jardim muito bem cuidado, além das demais áreas comuns.
| Aluguel | R$ 1.850,00 |
| Condomínio | R$ 540,00 |
| IPTU Mensal | R$ 0,00 |
| Total | R$ 2.390,00 |
Aluguel | |
Condomínio | |
IPTU Mensal | |
Total |
Não encontrou o que procura? A Plaka pode te ajudar a encontrar o imóvel que deseja.
Contato