
| Transação | Aluguel |
| Bairro | Pompéia |
| Endereço | Rua: Palestra Itália |
| Vagas | 0 |
| Área útil | 500 m² |
| Área Total | 500 m² |
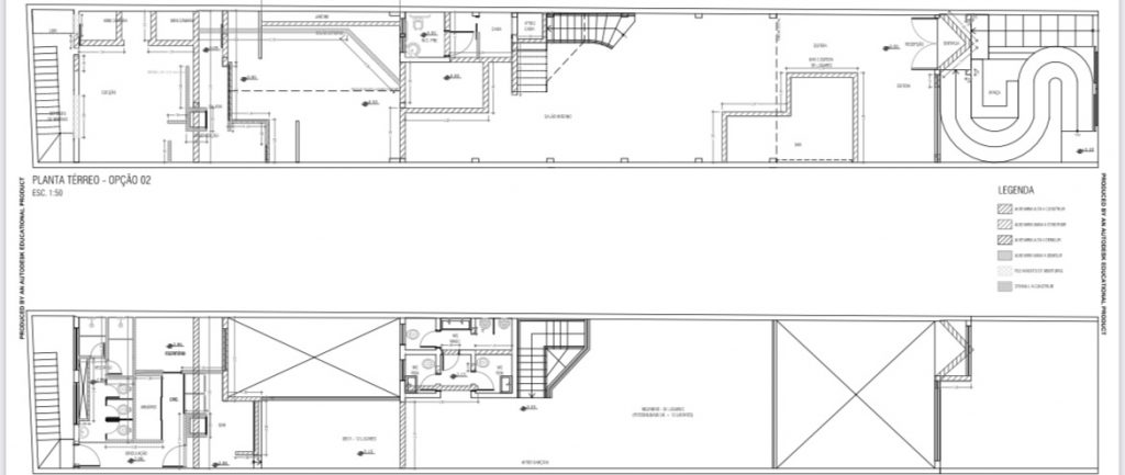
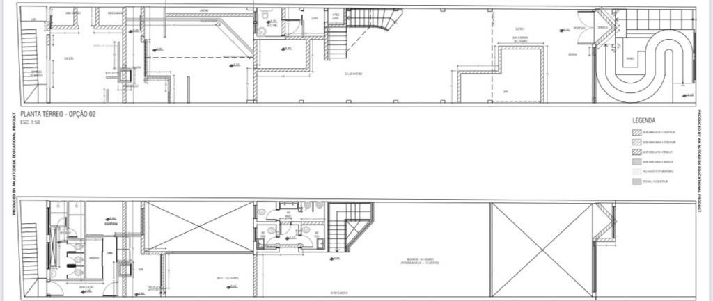
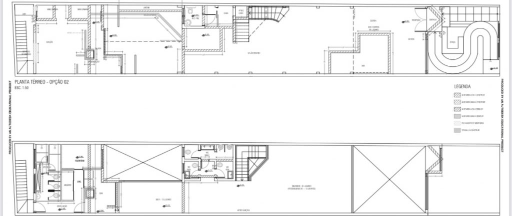
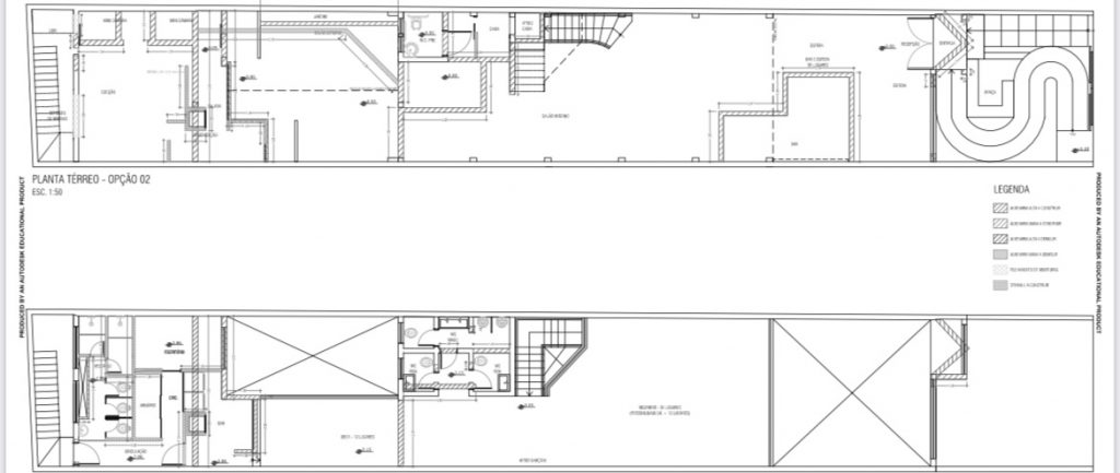
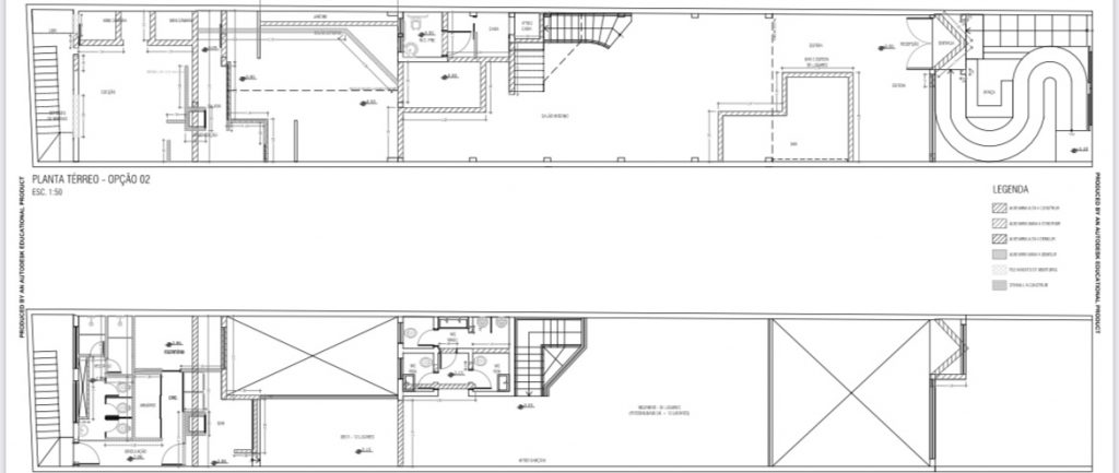
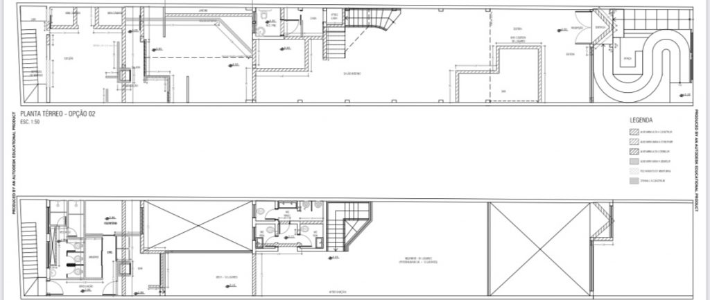
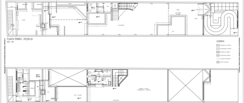
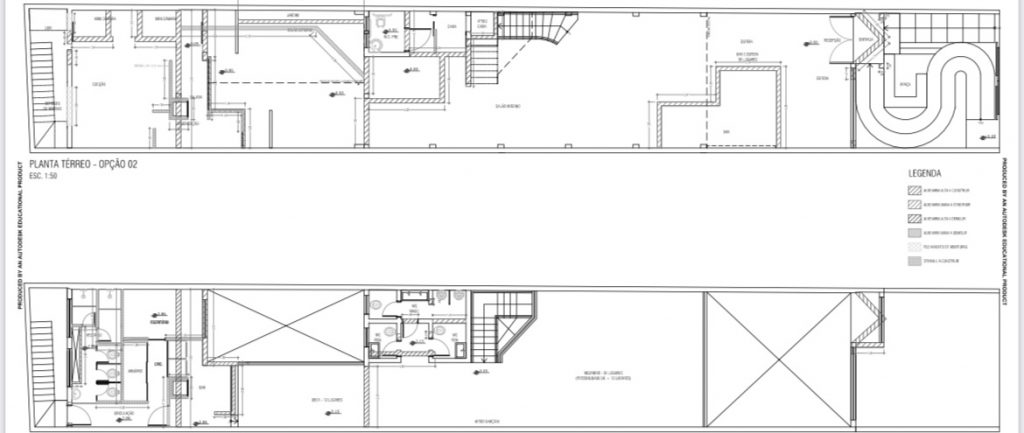
Salão comercial com 2 pavimentos e 500 m2 de área construída ( 6,00m X 30,00m aprox. ), prédio com fachada estruturada com vigas de ferro e vidros, recuado em relação à rua Palestra. Pavimento ao nível da rua com amplo salão, balcão em granito preto na entrada do salão como parte da área de um bar, área de caixa, banheiros, inclusive para pessoas com necessidades especiais, mais ao fundo área para mesas com cobertura retrátil e finalmente a área de cozinha. Pavimento superior com vestiário de funcionários, área de estoque protegida e área para escritório, tudo isto nos fundos do pavimento, na parte dianteira temos os banheiros, masculino e feminino, e mais a área para mesas, tubulação para instalação de ar condicionado já existente. Não há área para estacionamento, porém em frente há a opção do shopping Bourbon. Destaques: Rede elétrica trifásica, acessibilidade para pessoas com necessidades especiais, tubulação de gás para botijão e dutos para o ar condicionado.
Em frente ao shopping Bourbon e a poucos metros da Av. Pompéia, muito próximo ao SESC Pompéia e clube Sociedade Palmeiras. Região de muito fluxo de veículos e pessoas, especialmente em dias de jogos e eventos na Arena.
não há
| Aluguel | R$ 20.000,00 |
| Condomínio | R$ 0,00 |
| IPTU Mensal | R$ 3.151,00 |
| Total | R$ 23.151,00 |
Aluguel | |
Condomínio | |
IPTU Mensal | |
Total |
Não encontrou o que procura? A Plaka pode te ajudar a encontrar o imóvel que deseja.
Contato